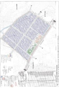
Cụm Công nghiệp Trung Sơn – Ninh Sơn có quy mô 75 ha, thuộc xã Ninh Sơn và xã Tiên Sơn, huyện Việt Yên. Cụm Công nghiệp có ranh giới phía Bắc giáp đường Vành đai 4; phía Nam giáp cánh đồng trồng lúa của xã Ninh Sơn; phía Đông giáp cánh đồng thôn Phúc Ninh, xã Ninh Sơn; phía Tây giáp cánh đồng thôn Kim Sơn, xã Tiên Sơn.
Các ngành nghề hoạt động chính của Cụm Công nghiệp sau khi đi vào hoạt động là điện, điện tử, truyền thông, cơ khí, công nghiệp phụ trợ, thiết bị dụng cụ y tế, dược, chế biến nông sản thực phẩm và di dời một số cơ sở sản xuất trong làng nghề để giảm thiểu nguy cơ ô nhiễm khu dân cư.
Vốn đầu tư xây dựng cơ sở hạ tầng khoảng 684,57 tỷ đồng.

Về tiến độ thực hiện dự án, năm 2020 – 2022, thực hiện các thủ tục về đầu tư, xây dựng, môi trường, đất đai; hoàn thành giải phóng mặt bằng, xây dựng hạ tầng trong đó có Trạm xử lý nước thải.
Năm 2022 – 2023, hoàn thành đồng bộ hạ tầng, thu hút đầu tư lấp đầy tối thiểu 30% diện tích đất công nghiệp.
Năm 2024 dự kiến lấp đầy 100% đất công nghiệp.
Mọi thông tin bán – cho thuê nhà xưởng về sản phẩm Cụm Công nghiệp Trung Sơn – Ninh Sơn dự kiến triển khai sắp tới, xin mời liên hệ Halic Global để được cập nhập cụ thể.





